USA CORPORATE HQ

9102 Bay Harbour Circle

West Plam Beach, FL 33411-5144

greatthings88@gmail.com

"Made in America, by Americans, for the  world"

+1.813.728.3821

​+1.561.800.4731

CONTACT

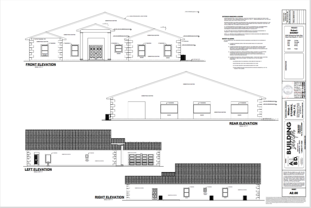
ELEVATIONS

SEALED ENGINEER DRAWINGS

CLICK ON THE IMAGE TO DOWNLOAD THE DRAWING

THE SHOREY PROJECT,  WELLINGTON, FL